Skip to content

Rehau Geneo

Rehau GENEO serisi pencereler, piyasada bulunan 86 mm yapı derinliğine sahip pencere profil sistemleri arasında enerjik olarak en iyisidir. Rehau GENEO’ nun özelliği yüksek teknolojiye sahip RAU-FIPRO malzemesinde yatar. Bu, profili çok sağlamlaştıran elyaf bileşimli bir malzemedir. Stabilite için gerekli olan destek sacları uygulamaların %90’ında ortadan kalkar. Böylece, çeliğin sebep olduğu ısı köprüleri ortadan kalktığı için, GENEO ene iyi ısı yalıtım değerlerini hedefler. GENEO ile “enerji tasarruf düzenlemesinin ( EnEV )” şart koyduğu koşullardan daha fazlası bile yerine getirilir. Aynı zamanda bu pencere sistemi, ısı yalıtımından ödün vermeden tasarım ve konfor için gerekli optimum ön koşulları sağlar.

Rehau Geneo Özellikler

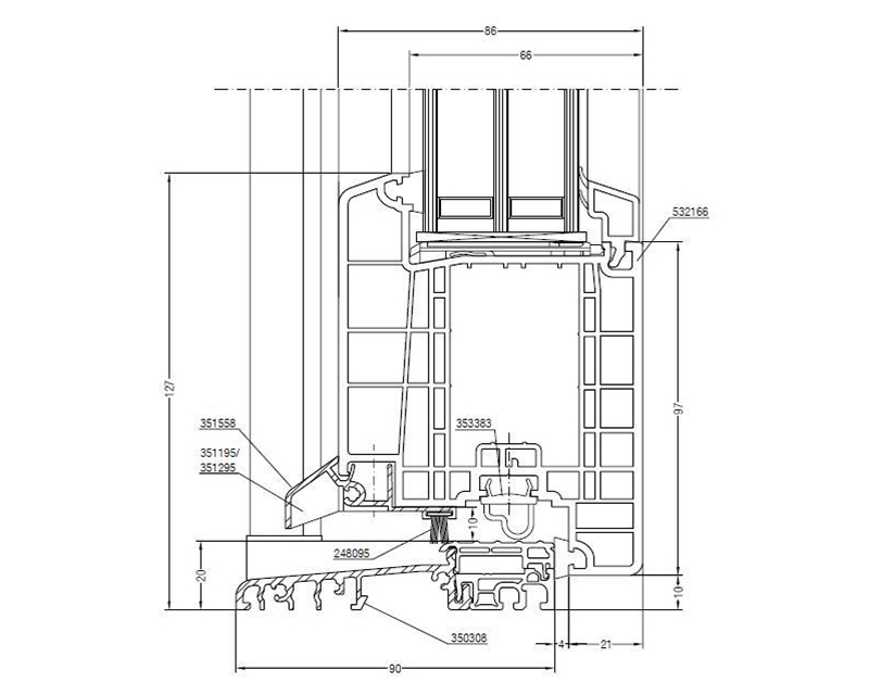
  • Yapı derinliği: 86 mm / orta conta
  • Odacık sayısı: 6 odacık
  • Isı yalıtım: Uf 0,86 W/m²K’ya kadar
  • Enerji tasarrufu: %76’ya kadar*
  • Malzeme: elyaf bileşimli RAU-FIPRO, en yüksek yüzey kalitesi için kaliteli RAU-PVC’den koekstrüzyon ile üretilmiş dış tabaka
  • Ses yalıtımı: çelik destek sacı olmadan Rw,P = 47 dB’ye kadar (camlama ile birlikte Rw = 50 dB)
  • Hırsızlık emniyeti: direnç sınıfı 3’e kadar, çelik destek sacsız direnç sınfı 2’ye kadar
  • Hava geçirgenliği: 4 (EN 12207)
  • Sağanak yağış geçirimsizliği: 9A (EN 12208)
  • *80’li yılların ahşap / plastik pencerelerinden (Uf = 1,9, Ug = 3,0) GENEO profilli pencerelere (Uf = 0,86, Ug = 0,5, pencere boyutu 123 x 148 cm) geçişte enerji kaybının azaltılması

Rehau Geneo Avantajlar

  • İlave çelik destek sacı olmadan tam destekli pencere sistemi
  • Yüksek teknolojik RAU-FIPRO malzemesi sayesinde kusursuz bir profil konstrüksiyon ve “entegre edilmiş takviye sistemi (IVS)” ile mükemmel stabilite
  • Optimum ışık için 115 mm görülen genişlik
  • Destek sacı olmadığından rasyonel depolama ve üretim
  • Alışılagelmiş pencere profil sistemleri ile karşılaştırıldığında %40’a varan hafiflik avantajı sayesinde daha kolay kullanım ve montaj
  • Yalıtım özelliklerinin ısı modülleriyle optimize edilmesi için fonksiyon odacıkları
  • Üçlü ısıcam uygulaması için 66 mm geniş cam boşluğu
  • Yeni geliştirilen conta geometrisi sayesinde kapatmak için gerekli olan kuvvet azaltılmış olup, pencereler hissedilebilir derecede kolay açılıp kapanabilmektedir
  • High Definition Finishing yüzey (HDF): yüksek kaliteli, şık, son derece düz bir yapıya sahip ve bu yüzden bakımı kolaydır
  • Geri dönüştürülebilir olduğundan çevre dostu
  • Kusursuz enerji verimliliği – GENEO ailesi ile (pencere, ev kapısı, kaldırmalı sürme kapı) bina cephe yalıtımını en uygun şekilde yapabilirsiniz.